a new public swimming space to arrive in gothenburg
Henning Larsen has been selected to design Centralbadet, a new public swimming and sports center in Gothenburg, Sweden. The winning timber proposal — developed in collaboration with Winell & Jern Architects, Ramboll, and sports science lecturer John Dohlsten — is expected to open in 2031.
The upcoming Centralbadet represents a major investment in the city’s cultural infrastructure and continues Gothenburg’s legacy of public swimming spaces in a way that is sustainable and contemporary.
The jury praised the winning entry as ‘an elegant and vibrant facility where citizens can come together — whether to swim, play basketball, or simply sit on the sun-facing steps by the river.’
Henning Larsen wins a competition for Gothenburg’s new Centralbadet | visualizations © Plankton Group
Centralbadet: A House for Health and Community
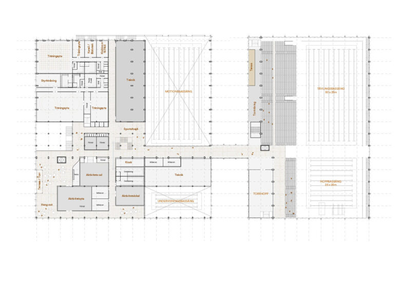
The team at Henning Larsen plans the 51,850-square-meter Centralbadet complex for both elite athletes and everyday visitors in Gothenburg. Olympic-standard pools and diving facilities will stand alongside family pools and learning spaces.
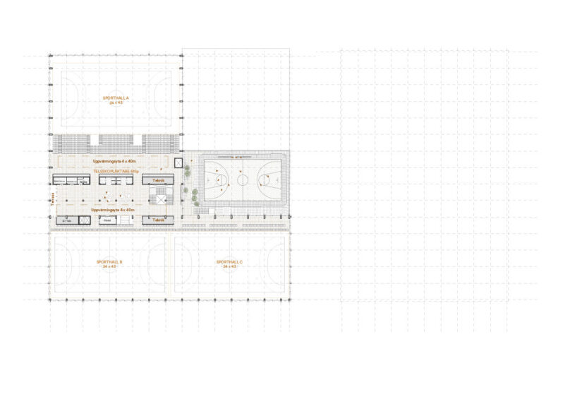
The program also includes four sports halls, a basketball court, a gym, outdoor pools, saunas, and a café. To support everyday life, the design incorporates flexible gathering areas, stroller parking, and — in the true Scandinavian style — a dedicated bicycle garage.
‘The intention behind Centralbadet is to prioritize social and health benefits as much as athletic performance,’ says Martin Stenberg Ringnér, Design Director at Henning Larsen. ‘From quiet nooks to sunlit rooftops, we wanted every visit to feel accessible, connected, and integrated with the rhythms of the city.’

the project will open in 2031 as a landmark for public health and recreation
extending the forested park into the architecture
Henning Larsen’s Centralbadet proposal honors Valhallabadet, Gothenburg’s historic swimming hall, by carrying forward traditions of public bathing and community health. References to the city’s cultural heritage appear in the landscape and artistic details, including pathways inspired by the cubist murals of 20th century Swedish artist Nils Wedel.
Situated in Katrinelund, long associated with recreation and respite, the new Centralbadet is planned to strengthen connections to the Mölndal River and the nearby Burgårdsparken — a forested park which is home to a well-known skatepark. Visitors will be able to circulate throughout the building and onto its rooftop, which hosts running tracks, outdoor gyms, terraces, and planted areas that extend the experience of the parkland into the architecture.

Centralbadet will include Olympic-standard pools as well as pools for everyday recreation
henning larsen’s circular strategy
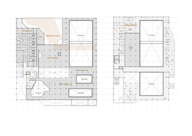
Centralbadet’s construction strategy balances durability with environmental performance. Concrete provides structural stability for the pool basins, while long-span glulam beams and other timber elements reduce embodied carbon and perform well in humid conditions. Timber is also used for interior partitions and ceilings, and elements are designed for disassembly and future reuse.
The facade incorporates recycled brick, linking the project to its context and celebrating the sustainability of circular construction. Extensive green roofs support biodiversity, manage stormwater, and increase the building’s resilience over time. Together, these strategies establish Centralbadet as a long-lasting civic resource designed to evolve with the city.

concrete pool basins pair with glulam timber spans to reduce embodied carbon
1/13
project info:
name: Centralbadet Public Swimming Sports Center
architect: Henning Larsen | @henninglarsenarchitects
location: Gothenburg, Sweden
collaborators: Winell & Jern Architects, Ramboll, John Dohlsten at University of Gothenburg
completion: expected 2031
photography: © Plankton Group | @plankton.group













